Piscina in legno ottagonale NorthWood 510 - Ø 5,10 x h.1,20 m
| Garanzia: | 15 anni |
| ID: | 17386 |
fino a 24 rate. (SCOPRI DI PIÙ)
PROMOZIONE:
Pompa di calore per piscina fino a 40 m³ - HEATRELAX Hayward
Seleziona i prodotti
Descrizione

La piscina in legno Northwood 510 è perfetta per il tuo giardino, un lusso a portata di mano!
Elegante grazie alla struttura ad incastro e al largo bordo in legno di abete, la piscina Northwood 510 può essere installata fuori terra, semi-interrata oppure interrata.
Il kit di installazione che proponiamo è completo di ogni componente per permetterti di godere subito della tua piscina. Oltre agli elementi fissi, il kit piscina può essere personalizzato per quanto riguarda il colore del liner, scegliendo quello che preferisci tra blu, beige e grigio.
Il kit include due scalette: una in legno, esterna, per l'accesso alla vasca ed una interna, in acciaio, per uscire facilmente e in sicurezza dalla piscina.
Vantaggi
-
Struttura robusta e resistente di legno di pino nordico trattato in autoclave classe IV garantita 15 anni
-
Filtrazione a sabbia monoblocco di alta qualità testata in laboratorio
-
Doppio parapetto in abete del nord
-
Installazione a scelta fuori terra, seminterrata o interrata
Installazione senza la platea in cemento

Uno dei vantaggi di questa piscina in legno è che la base in cemento (chiamata anche “platea” o “soletta”) sotto l’intera struttura non è obbligatoria, ma consigliata.
Questa caratteristica porta un notevole risparmio di tempo e costi durante l’installazione.
La piscina deve essere installata su terreno idoneo e ogni passaggio del manuale di installazione deve essere seguito con precisione.
Dimensioni
-
Dimensioni interne: Ø 4,60 m
-
Dimensioni esterne: Ø 5,10 m
-
Altezza struttura: 1,20 m
-
Volume d'acqua: 15,7 m3
-
Superficie dell'acqua: 15 m2

Struttura in legno di pino trattato in autoclave
Il legno di pino nordico utilizzato per realizzare la struttura della piscina Northwood viene sottoposto ad un trattamento conforme alle norme in vigore, ovvero in autoclave classe IV per evitare qualsiasi pericolo alle persone o animali che ne vengono in diretto contatto con la piscina.
Il legno, in quanto materiale vivo, è soggetto alle variazioni di temperatura e di umidità, che possono portarlo a contrarsi, espandersi, creare piccole fessure o crepe: si tratta di fenomeni naturale che non compromette la durata e la funzione della piscina.
Il trattamento del legno in autoclave

Fasi del trattamento in autoclave:
1) Il legno è introdotto nell'autoclave
2) Il vuoto estrae l'aria dall'autoclave
3) Il prodotto di preservazione riempie l'autoclave
4) L'autoclave è pressurizzata, forzando l'entrata del prodotto nel legno
5) Il prodotto è evacuato e un sottovuoto è applicato per togliere gli eccessi
6) Il legno è ora trattato
Cosa include il kit piscina

1) Struttura piscina in legno di pino trattato in autoclave spessore di 45 mm
- Manuale di installazione incluso
2) Doppio parapetto in legno di abete del nord con finiture di acciaio anodizzato larghezza 300 mm - spessore 27 mm
Elemento decorativo non adatto come seduta o camminamento
3) Liner spessore 75/100 trattato anti raggi UV
Disponibile nei colori Blue, Beige o Grey (grigio)
4) Tappetino di fondo antibatterico in feltro 200 gr/m2
e feltro per i lati della piscina 170 gr/m2
5) Scala esterna in legno per l'ingresso in acqua a 4 scalini, removibile per la sicurezza dei bambini
Scala interna in acciaio inox per l'uscita dalla vasca a 3 scalini
6) Filtrazione composta da:
- n.1 gruppo filtrante a sabbia da 6 m3/h - Ø 400 mm
- n.1 tubo PVC, 8 m
- n.2 sacchi di sabbia da 25 Kg
- n.1 skimmer largo
- n.1 bocchetta di mandata
Installazione della piscina
-
Persone necessarie: almeno 2
-
Tempo: 48/72h
Dato indicativo riferito all'installazione da parte di un tecnico specializzato, al netto di eventuali interventi necessari alle tavole (vedere capitolo "Informazioni utili sul legno") -
Sono necessari attrezzi manuali e preferibilmente un avvitatore a batteria
-
Nella scatola è presente un pezzo di legno (rettangolare, con scanalature) chiamato "pezzo martire" da utilizzare tra la il martello e le assi durante l'installazione della piscina: questo permette di evitare lo schiacciamento delle scanalature del legno con l'attrezzo.
(versione 2017)
Informazione importante per la garanzia
Ai fini della garanzia è molto importante conservare la busta trasparente che contiene il manuale cartaceo di installazione della tua piscina, contenuto all'interno dell'imballo.
Sulla busta oppure sul frontespizio del manuale è riportata una etichetta con il numero di serie del kit piscina.
Ti chiediamo di conservare la busta ed il manuale di installazione per tutta la durata del periodo di garanzia.
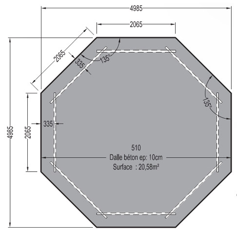
Platea di cemento
Anche quando non obbligatoria, la base in cemento sotto la piscina è consigliata, per migliorare la stabilità della struttura.
Prima di decidere il sito di installazione è importante valutarlo, conoscerne le caratteristiche, consultare l'installatore al quale si è scelto di affidare il montaggio.
Nel caso si scelga di realizzare la platea, questa deve essere almeno 10 cm di altezza e 10 cm più larga della struttura della piscina.
Il disegno qui a fianco mostra le dimensioni, gli angoli, i lati ecc. da rispettare nella costruzione della base.
Lo schema è presente anche nel manuale di montaggio, vedi pulsante sopra.
Modalità di installazione
La piscina può essere installata in 3 modi diversi:
- fuori terra
- semi-interrata
- interrata (*).
(*) In caso di installazione interrata è necessario sostituire il kit di collegamento in dotazione (che ha diametro 38 mm) con tubi diametro 50 mm adatti per essere interrati.
Consiglio utile: quando scegli dove posizionare la piscina, valuta di orientarla in modo da posizionare l’entrata dello skimmer contro il vento prevalente, così da ottimizzare l’evacuazione delle particelle in superficie
INSTALLAZIONE FUORI TERRA, passaggi principali

INSTALLAZIONE INTERRATA E SEMI-INTERRATA, passaggi principali
1) Posare la membrana plastica alveolata isolante (non inclusa nel kit, da acquistare a parte) sulla parete esterna per drenare le acque piovane. L’altezza della membrana deve corrispondere al livello del terrapieno.
2) Riempire il perimetro della piscina con ghiaia frantumata, facendo attenzione a non deformare la struttura in questa fase.
Informazioni utili sul legno
-
In attesa di essere installata, la struttura della piscina deve essere conservata in luogo fresco e ben ventilato, in una zona al riparo dalla luce solare e dall'umidità.
-
In caso di assi bagnate/umide è necessario far asciugare il legno prima di procedere all'installazione.
-
Le crepe, i nodi e le fenditure di piccola taglia a livello delle linguette non alterano per niente la resistenza meccanica del legno. Non chiudere le fessure con del mastice o ogni altro materiale.
-
Macchie di colore azzurro verde (residui del trattamento in autoclave) e muffe sono fenomeni superficiali, che possono essere facilmente rimossi con carteggiatura.
-
Durante il montaggio togliere eventuali sbavature degli incastri delle assi in legno con una lima o con la carta abrasiva, in modo da eliminare eventuali schegge.
Clicca QUI per maggiori informazioni sulle caratteristiche del legno.
Esempi di installazioni
Fotografie al solo scopo illustrativo




Montaggio e collaudo in tutta Italia
Servizi esclusi dalle proposte presenti in questa pagina
BSVillage, su richiesta, ti può segnalare uno o più nominativi di installatori professionisti che operano nella tua zona: per informazioni e contatti compila il modulo in fondo a questa pagina oppure chiamaci al numero 0522/1536417.
I nomi che ti forniremo sono di liberi professionisti non collegati alla nostra azienda: ogni accordo in merito all'installazione, dai tempi, al compenso, ecc. sarà concordato con il professionista.
La realizzazione dell'eventuale platea in cemento deve avvenire a cura del cliente.
Installazione "fai da te"
Kit piscina ideale per installazioni fai da te, direttamente dall'utente finale, per chi ha buona esperienza e manualità nell'impiantistica, nella lavorazione e nel trattamento del legno e preferibilmente nell'installazione di piscine di questo tipo, nonchè possibilità di effettuare piccoli interventi e/o reperire eventuale minuteria necessaria.
Sicurezza in piscina
Questa piscina risponde agli standard qualitativi e di sicurezza europei (normative EN-16582-1 e EN-16582-3).
Al fine di prevenire eventuali incidenti, le piscine private all'aperto - a uso individuale o collettivo - con bacino interrato o parzialmente interrato devono essere attrezzate con un adeguato sistema di sicurezza come: recinzioni protettive, coperture o allarmi.Il sistema di sicurezza impiegato deve essere conforme a standard certificati e in nessun caso sostituisce la vigilanza di adulti responsabili, che dovrebbero sempre sorvegliare ciò che accade dentro e intorno alla piscina.
Garanzia
Ai fini della validità della garanzia è tassativo seguire le istruzioni riportate all'interno del manuale di installazione e di conservarlo insieme al suo involucro trasparente (vedere paragrafo "Installazione della piscina")
Durata della garanzia
Sulla struttura (*): 15 anni contro il marcimento e gli attacchi di insetti xilofagi (a partire dalla data di acquisto da parte del cliente)
Altri componenti: 2 anni
Per quanto riguarda il liner, la garanzia è riferita all'impermeabilità e tenuta delle saldature in condizioni di utilizzo standard.
(*) Sono esclusi dalla garanzia: variazioni nel colore del legno causate dagli agenti atmosferici; deformazioni naturali (crepe, fessurazioni e nodi non pregiudicano in alcun modo la resistenza meccanica del legno); imperfezioni che non compromettono la solidità della struttura: affioramenti di resina, discromie nelle assi, macchie verdastre dovute al trattamento in autoclave e muffe superficiali di colore grigio/nero causate da una mancanza di aerazione della struttura imballata; deformazione delle perline della parete dovuta a montaggio o conservazione errati (montaggio eseguito molto tempo dopo l’apertura del pacco senza aver riserrato i componenti); deformazione delle assi dovuta alla pressione dell’acqua non pregiudicante la resistenza meccanica della piscina; deformazione della struttura dovuta al montaggio della piscina su una soletta non conforme; deterioramento della struttura dovuto a installazione interrata o seminterrata non conforme (sono obbligatori la membrana impermeabilizzante e il riempimento con brecciolino); deterioramento della struttura dovuto al trattamento del legno con prodotti idrofobici che non consentono al legno di respirare: catrame, vernici, mordenti, ecc.; spaccature o assenza di linguette lunghe meno di 30 cm non pregiudicanti in alcun modo la resistenza meccanica della piscina; deformazioni lievi che non impediscono l’incastro delle assi.
Condizioni di garanzia
-
Nel caso in cui non si desideri installare immediatamente la piscina, è necessario riporre il pacco ancora imballato in un luogo fresco e ventilato o, qualora non fosse possibile, al riparo dal sole e dalle intemperie.
Se i componenti sono già stati disimballati, occorre imballarli nuovamente posizionando le assi in orizzontale e serrandole saldamente. -
La garanzia è circoscritta alla sostituzione dei pezzi difettosi. Non implica alcun tipo di rimborso o di risarcimento danni.
-
Per proteggere la struttura in legno della piscina dai fattori atmosferici, si raccomanda di effettuare dei trattamenti con prodotti per la cura e la manutenzione del legno.
La mancata manutenzione annuale della struttura comporterà l'annullamento della garanzia
La garanzia generale non è applicabile nei seguenti casi:
-
Uso del materiale non conforme alle indicazioni del produttore.
-
Danni causati da un'errata manipolazione al momento del montaggio e dopo di esso, nonché da qualsiasi modifica apportata sugli elementi della struttura senza il consenso del produttore.
Spedizione
Informazioni importanti per spedizione e consegna
-
Per spedizioni in zone disagiate, ovvero particolarmente difficili da raggiungere (per es. località montane, isole, centri storici ecc.) e nelle regioni Abruzzo, Molise, Campania, Puglia, Basilicata e Calabria ci riserviamo di chiedere un contributo aggiuntivo alle spese di spedizione indicate sul sito/nel preventivo.
-
La consegna avverrà con mezzo dotato di sponda idraulica e carrello se l'accesso all'indirizzo di destinazione merce consente il passaggio e la manovra di un veicolo con motrice/rimorchio (lungo fino a 14 metri).
Se mancano le condizioni di accesso sopra indicate oppure avete dei dubbi, vi chiediamo di contattare l'Ufficio Spedizioni alla mail spedizioni@bsvillage.com: in questo caso il mezzo idoneo al passaggio/accesso al luogo di consegna potrebbe non essere dotato di sponda idraulica.
-
La consegna avverrà al piano strada.
L'eventuale servizio di facchinaggio, a pagamento, deve essere richiesto prima dell'acquisto, in modo da essere preventivato.
La consegna dei kit proposti in questa pagina avverrà in più spedizioni.
Per agevolare la consegna della merce consigliamo ai nostri clienti di organizzarsi per la ricezione in base al peso/volume degli articoli che saranno consegnati: questa informazione è disponibile, e sempre aggiornata, nell'Area Clienti sul nostro sito.
Vuoi che la merce acquistata ti venga consegnata in una unica spedizione invece di più consegne? Contatta il nostro Ufficio Spedizioni alla mail spedizioni@bsvillage.com oppure comunicalo al Commerciale che ha seguito il tuo acquisto: ti spiegheremo le modalità, i tempi ed i costi.
Accessori optionals
Torna in: Piscine in legno NorthWood



